+79999236067
clt.drev@yandex.com
КАТАЛОГ

ВОЕВОДА

ДРЕВЪ

ПЛОЩАДЬ:


  • Общая без террас (отапливаемая): 159,5 м²
  • Площади террас (суммарно): 41,0 м²
  • Общая с террасами: 200,5 м²
  • Жилая (спальни + кухня-гостиная): 86,7 м²

«ВОЕВОДА» — дом с характером русской усадьбы: ломаные свесы, строгие фронтоны, тёплая фактура бруса и высокий эркер со стеклом до конька.

Входишь с крыльца 6,0 м² — и сразу чувствуешь, что здесь будет жить Семья: просторная кухня-гостиная 37,9 м² под вторым светом — место, где собираются на праздники, ставят большой стол, а зимой трещит камин.

Отсюда же — выход на террасу 35,0 м²: летние завтраки, детские игры, вечерние разговоры до темноты.

Первый этаж продуман для повседневной жизни: рядом с общей зоной — гостевая спальня 12,2 м² (для бабушек и друзей) и кабинет 12,2 м² — тихая комната для работы или будущая детская.

Холл 12,1 м², прихожая и техпомещение по 5,85 м², санузел 4,75 м² — быт устроен без суеты.

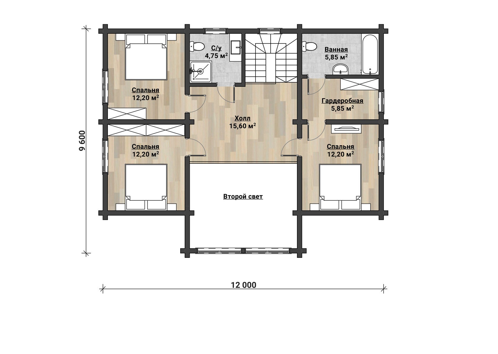
На втором уровне — три равные спальни по 12,2 м², чтобы у каждого было своё пространство;

ванная 5,85 м², второй санузел 4,75 м² и гардеробная 5,85 м² — порядок и комфорт на долгие годы.

Из холла 15,6 м² открывается вид на гостиную — приятно видеть, как внизу собирается семья.

Клеёный безусадочный брус держит форму десятилетиями и даёт тот самый «деревянный» микроклимат.

Дом легко подстраивается под уклад Рода: каминный узел, остекление части террасы, тёплые полы, «умный дом», навес или гараж в едином стиле.

«ВОЕВОДА» — не просто квадратные метры, а семейное гнездо, которое передают дальше — вместе с историями и традициями.

Этажность: 2 этажа

Площадь общая без террас (отапливаемая): 159,5 м²

Площади террас (суммарно): 41,0 м² (35,0 + 6,0)

Площадь общая с террасами: 200,5 м²

Площадь жилая (спальни + кухня-гостиная): 86,7 м²

Кухня-гостиная: 37,9 м²

Спальни метраж: 4 × 12,2 м²

Кабинет: 12,2 м²

Санузлы метраж: 3 (с/у 4,75 м² на 1-м, с/у 4,75 м² и ванная 5,85 м² на 2-м)

Гардеробная: 5,85 м²

Техпомещение: 5,85 м²

Холл 1 этажа: 12,1 м²

Холл 2 этажа: 15,6 м²

Прихожая: 5,85 м²

Крыльцо: 6,0 м²

Терраса: 35,0 м²

Второй свет: есть (в площадь 2-го этажа не входит)

Габариты по плану: 12,0 × 9,6 м

Материал стен: Клеёный брус, безусадочный

Фундаменты: По геологии участка (бетонные сваи/свайно-ростверковый/плита/цокольный этаж)

Остекление: Панорамные витражи, тёплые стеклопакеты

Назначение: Круглогодичное проживание

ПЛОЩАДЬ м²: 180 - 200

КОЛИЧЕСТВО ЭТАЖЕЙ: 2

НАЛИЧИЕ ТЕРРАСЫ: Да

СПАЛЬНИ: 4

САНУЗЛЫ: 3

Характеристики
Планировки 1 этаж
Планировки 2 этаж
Комплектации

Характеристики

Этажность: 2 этажа
Площадь общая без террас (отапливаемая): 159,5 м²
Площади террас (суммарно): 41,0 м² (35,0 + 6,0)
Площадь общая с террасами: 200,5 м²
Площадь жилая (спальни + кухня-гостиная): 86,7 м²
Площадь полезная (отапливаемая): 159,5 м²
Кухня-гостиная: 37,9 м²
Спальни: 4 × 12,2 м²
Кабинет: 12,2 м²
Санузлы: 3 (с/у 4,75 м² на 1-м, с/у 4,75 м² и ванная 5,85 м² на 2-м)
Гардеробная: 5,85 м²
Техпомещение: 5,85 м²
Холл 1 этажа: 12,1 м²
Холл 2 этажа: 15,6 м²
Прихожая: 5,85 м²
Крыльцо: 6,0 м²
Терраса: 35,0 м²
Второй свет: есть (в площадь 2-го этажа не входит)
Габариты по плану: 12,0 × 9,6 м
Материал стен: клеёный брус, безусадочный
Фундаменты: по геологии участка (бетонные сваи / свайно-ростверковый / плита / возможен цокольный этаж)
Кровля: металл / мягкая / натуральная черепица
Остекление: панорамные витражи, тёплые стеклопакеты
Назначение: круглогодичное проживание

Планировки 1 этаж

Планировки 2 этаж

Комплектации

Чистовая отделка:
Компания "ДРЕВЪ" - одна из немногих компаний красит брус в заводских условиях. Тщательная обработка капельников, перерубов, чаш и бруса со всех 4 сторон. Так как брус выезжает с завода уже крашенный - наши дома можно собирать круглогодично. Используем водорастворимые краски Sikkens (Akzo Nobel ) с гарантией до 20 лет.

Индивидуальная планировка:
Мы понимаем, что у каждой семьи свой ритм жизни и особые привычки. Поэтому проект можно изменить под ваши потребности: добавить или убрать комнаты; объединить пространства или, наоборот, разделить их; перенести санузлы, кухню или входы; изменить размеры помещений. Наши архитекторы помогут создать планировку, в которой будет удобно именно вам — от первого этажа до мансарды.

Тепловой контур:
Тепловой контур — это готовый «коробочный» вариант дома, включающий всё необходимое для дальнейшей отделки и проживания. В состав входят: фундамент (по проекту); стены из клеёного бруса; кровля с утеплением и покрытием; монтаж конструкции; деревянные стеклопакеты. Такой формат позволяет получить полностью возведённый и защищённый от внешних воздействий дом, который можно сразу использовать для хранения и работ внутри, а внутреннюю отделку выполнить по собственным пожеланиям.
Made on
Tilda