Дом «ЗИМОГОРЪ» объединяет в себе мощь и уют. На первом этаже расположены гостиная с выходом на просторную террасу, кухня-столовая с отдельным гардеробом и техническим помещением, спальня и санузлы.
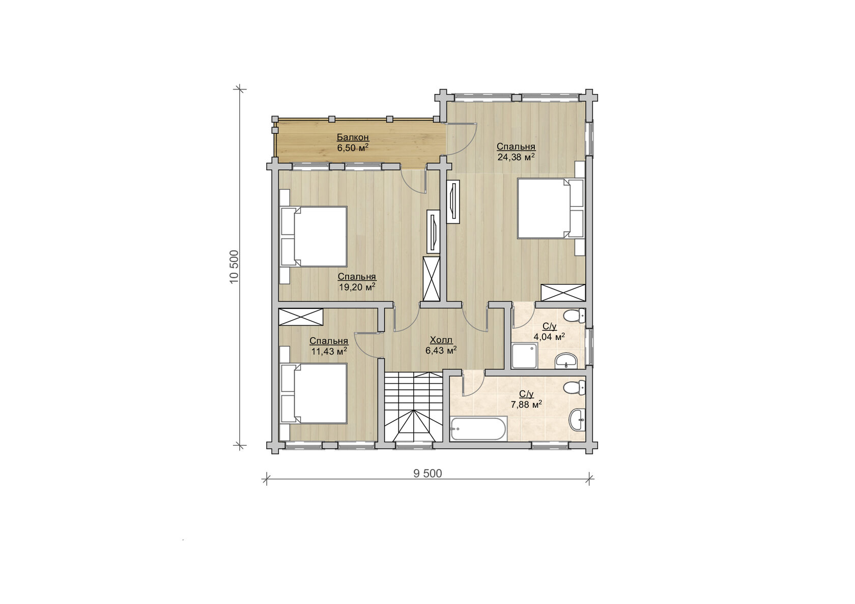
Второй этаж включает три спальни, два санузла и балкон с видом на участок — идеальное место для утреннего кофе или зимних вечеров с книгой.
Это дом для тех, кто ценит простор, современный стиль и комфорт на многие десятилетия.
Площадь общая с террасами: 180 м²
Кол-во этажей: 2
Кол-во комнат: 4 спальни
Терраса: 15 м²
Балкон: 6,5 м²
Материал стен: Безусадочный клеёный брус
Стиль: Современный, зимний
ПЛОЩАДЬ м²: 120 – 180
КОЛИЧЕСТВО ЭТАЖЕЙ: 2
НАЛИЧИЕ ТЕРРАСЫ: Да
СПАЛЬНИ: 4
САНУЗЛЫ: 3
