+79999236067
clt.drev@yandex.com
КАТАЛОГ

ВИТЯЗЬ

ДРЕВЪ

ПЛОЩАДЬ:


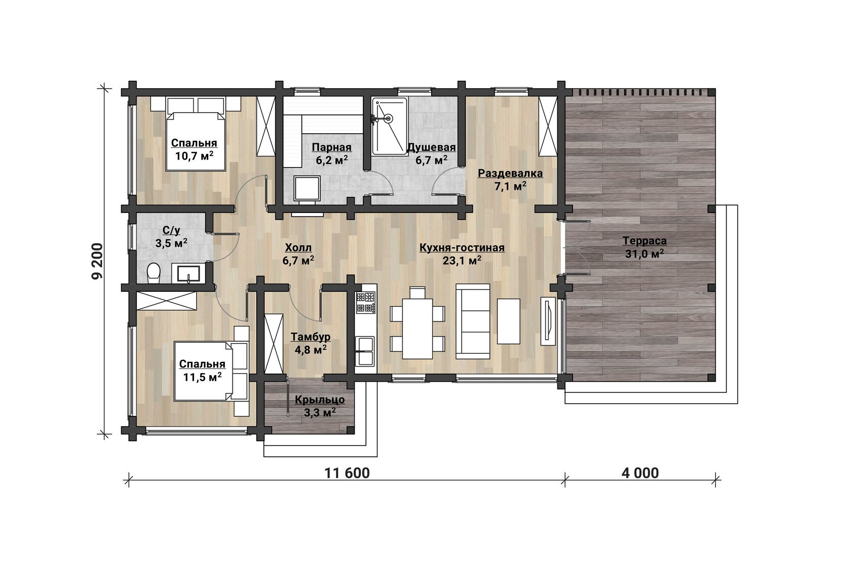
  • Общая без террас (отапливаемая): 80,3 м²
  • Площади террас (суммарно): 34,3 м²
  • Общая с террасами: 114,6 м²

«ВИТЯЗЬ» — современный гостевой дом-баня в стиле минималистичного шале: длинные свесы, чистая геометрия и большой стеклянный угол на террасе.

Сердце дома — кухня-гостиная 23,1 м² с витражами в пол и выходом на террасу 31,0 м².

Банный блок спроектирован как в полноценной бане: парная 6,2 м², душевая 6,7 м², раздевалка 7,1 м² и отдельный с/у 3,5 м².

Для ночёвки предусмотрены две спальни 11,5 и 10,7 м². Тёплый тамбур 4,8 м² и холл 6,7 м² упорядочивают входную группу.

Материал — безусадочный клеёный брус: стабильная геометрия, тёплые стены, чистый монтаж.

Дом можно исполнить в светлой или тёмной палитре — обе выглядят выигрышно благодаря крупному остеклению и выразительным свесам.

Опции: остекление/утепление части террасы, камин у зоны отдыха, тёплые полы, «умный дом», навес под авто.


Полный перечень помещений с метражом:

  • Кухня-гостиная — 23,1 м²
  • Спальня — 11,5 м²
  • Спальня — 10,7 м²
  • Парная — 6,2 м²
  • Душевая — 6,7 м²
  • Раздевалка — 7,1 м²
  • Санузел — 3,5 м²
  • Холл — 6,7 м²
  • Тамбур — 4,8 м²
  • Терраса — 31,0 м²
  • Крыльцо — 3,3 м²

Этажность: 1 этаж

Площадь общая без террас (отапливаемая): 80,3 м²

Площади террас (суммарно): 34,3 м² (31,0 м² терраса + 3,3 м² крыльцо)

Площадь общая с террасами: 114,6 м²

Площадь жилая (спальни + кухня-гостиная): 45,3 м²

Площадь полезная (отапливаемая): 80,3 м²

Кухня-гостиная: 23,1 м²

Спальни метраж: 2 (11,5 м² и 10,7 м²)

Санузлы метраж: 1 (3,5 м²) + душевая 6,7 м²

Парная: 6,2 м²

Раздевалка: 7,1 м²

Холл: 6,7 м²

Тамбур: 4,8 м²

Крыльцо: 3,3 м²

Терраса: 31,0 м²

Габариты по плану: 11,6 × 9,2 м, терраса вынос 4,0 м

Материал стен: Клеёный брус, безусадочный

Фундаменты: По геологии участка (бетонные сваи/свайно-ростверковый/плита/цокольный этаж)

Кровля: Металл/мягкая черепица/натуральная черепица

Остекление: Панорамные витражи, тёплые стеклопакеты

Назначение: Круглогодичное проживание и банные процедуры

Балкон: 80 - 120

КОЛИЧЕСТВО ЭТАЖЕЙ: 1

НАЛИЧИЕ ТЕРРАСЫ: Да

СПАЛЬНИ: 2

САНУЗЛЫ: 1

Характеристики
Планировки
Комплектации

Характеристики

Характеристики

Бренд: ДРЕВЪ
Габариты и вес
Д×Ш×В: 11,6 × 9,2 м (вынос террасы 4,0 м)
Этажность: 1 этаж
Площадь общая без террас (отапливаемая): 80,3 м²
Площади террас (суммарно): 34,3 м² (31,0 м² терраса + 3,3 м² крыльцо)
Площадь общая с террасами: 114,6 м²
Площадь жилая (спальни + кухня-гостиная): 45,3 м²
Площадь полезная (отапливаемая): 80,3 м²
Кухня-гостиная: 23,1 м²
Спальни: 2 (11,5 м² и 10,7 м²)
Санузлы: 1 (3,5 м²) + душевая 6,7 м²
Парная: 6,2 м²
Раздевалка: 7,1 м²
Холл: 6,7 м²
Тамбур: 4,8 м²
Крыльцо: 3,3 м²
Терраса: 31,0 м²
Габариты по плану: 11,6 × 9,2 м, терраса вынос 4,0 м
Материал стен: клеёный брус, безусадочный
Фундаменты: по геологии участка (бетонные сваи / свайно-ростверковый / плита / возможен цокольный этаж)
Кровля: металл / мягкая черепица / натуральная черепица
Остекление: панорамные витражи, тёплые стеклопакеты
Назначение: круглогодичное проживание и банные процедуры

Планировки

Комплектации

Чистовая отделка:
Компания "ДРЕВЪ" - одна из немногих компаний красит брус в заводских условиях. Тщательная обработка капельников, перерубов, чаш и бруса со всех 4 сторон. Так как брус выезжает с завода уже крашенный - наши дома можно собирать круглогодично. Используем водорастворимые краски Sikkens (Akzo Nobel ) с гарантией до 20 лет.

Индивидуальная планировка:
Мы понимаем, что у каждой семьи свой ритм жизни и особые привычки. Поэтому проект можно изменить под ваши потребности: добавить или убрать комнаты; объединить пространства или, наоборот, разделить их; перенести санузлы, кухню или входы; изменить размеры помещений. Наши архитекторы помогут создать планировку, в которой будет удобно именно вам — от первого этажа до мансарды.

Тепловой контур:
Тепловой контур — это готовый «коробочный» вариант дома, включающий всё необходимое для дальнейшей отделки и проживания. В состав входят: фундамент (по проекту); стены из клеёного бруса; кровля с утеплением и покрытием; монтаж конструкции; деревянные стеклопакеты. Такой формат позволяет получить полностью возведённый и защищённый от внешних воздействий дом, который можно сразу использовать для хранения и работ внутри, а внутреннюю отделку выполнить по собственным пожеланиям.
Made on
Tilda