+79999236067
clt.drev@yandex.com
КАТАЛОГ

ПЕРЕСВЕТЪ

ДРЕВЪ

Дом «Пересветъ» — это сочетание красоты и функциональности:

  • Общая площадь — 160 м²: достаточно места для семьи из 4–6 человек.
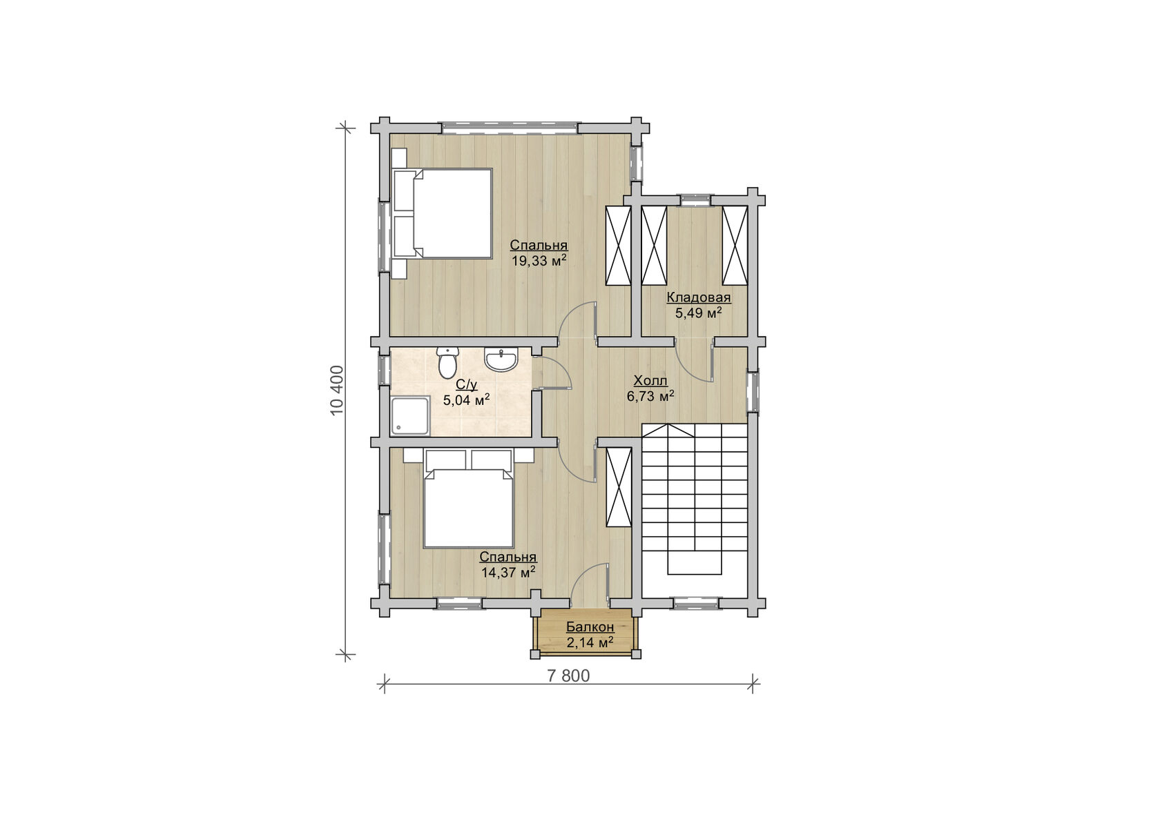
  • Первый этаж: просторная кухня-столовая с выходом на террасу (25 м²), гостиная, кабинет, кладовая, котельная и два санузла.
  • Второй этаж: две светлые спальни, хозяйская спальня 19 м² с гардеробной, ванная комната и уютный балкон.
  • Архитектура: скандинавский стиль с большим количеством окон, которые наполняют дом светом.
  • Терраса и балкон создают пространство для отдыха на свежем воздухе.

Фасад в светлых тонах с деревянными акцентами подчёркивает современность и вкус владельца, а планировка создаёт баланс уединённых и общих зон.

Стоимость теплового контура с фундаментом, кровлей, монтажом и деревянными стеклопакетами — ПО ЗАПРОСУ.

Общая площадь:: 160 м²

Кол-во этажей: 2

Спальни метраж: 3 (8,06 м²/ 19,33 м²/ 14,37 м²)

Кухня-столовая: 25,3 м²

Гостиная: 21,6 м²

Санузлы метраж: 3 (1,5 м²/5,46 м²/5,04 м²)

Терраса: 14,6 м²

Балкон: 2,1 м²

Кладовые: 1(1,56 м²)

Материал стен: Безусадочный клеёный брус

Стиль: Скандинавский

ПЛОЩАДЬ м²: 120 – 180

КОЛИЧЕСТВО ЭТАЖЕЙ: 2

НАЛИЧИЕ ТЕРРАСЫ: Да

СПАЛЬНИ: 4

САНУЗЛЫ: 3

Описание
Планировки
Характеристики

Описание

Дом «Пересветъ» — это сочетание красоты и функциональности:
  • 🏠 Общая площадь — 160 м²: достаточно места для семьи из 4–6 человек.
  • 🌿 Первый этаж: просторная кухня-столовая с выходом на террасу (25 м²), гостиная, кабинет, кладовая, котельная и два санузла.
  • 🛏 Второй этаж: две светлые спальни, хозяйская спальня 19 м² с гардеробной, ванная комната и уютный балкон.
  • ✨ Архитектура: скандинавский стиль с большим количеством окон, которые наполняют дом светом.
  • 🌳 Терраса и балкон создают пространство для отдыха на свежем воздухе.
Фасад в светлых тонах с деревянными акцентами подчёркивает современность и вкус владельца, а планировка создаёт баланс уединённых и общих зон.
Стоимость теплового контура с фундаментом, кровлей, монтажом и деревянными стеклопакетами — ПО ЗАПРОСУ.

Планировки

Характеристики

Площадь: 160 м²
Этажность: 2 этажа
Спальни: 3 + кабинет
Кухня-столовая: 25,3 м²
Гостиная: 21,6 м²
Санузлы: 3
Терраса: 14,6 м²
Балкон: 2,1 м²
Кладовые: 2
Материал: клеёный брус
Стиль: скандинавский
Made on
Tilda