КУПЕЛЬ — это про комфорт класса «резорт» на собственном участке.
Из парадного крыльца вы попадаете в холл и гостиную, где панорамное остекление наполняет дом дневным светом.
Правое крыло — большая кухня-столовая с прямым выходом на террасу 38 м² для летних завтраков. Левое крыло — приватная SPA-зона: раздевалка, душевая, парная и сердце проекта — крытый бассейн площадью 67,7 м².
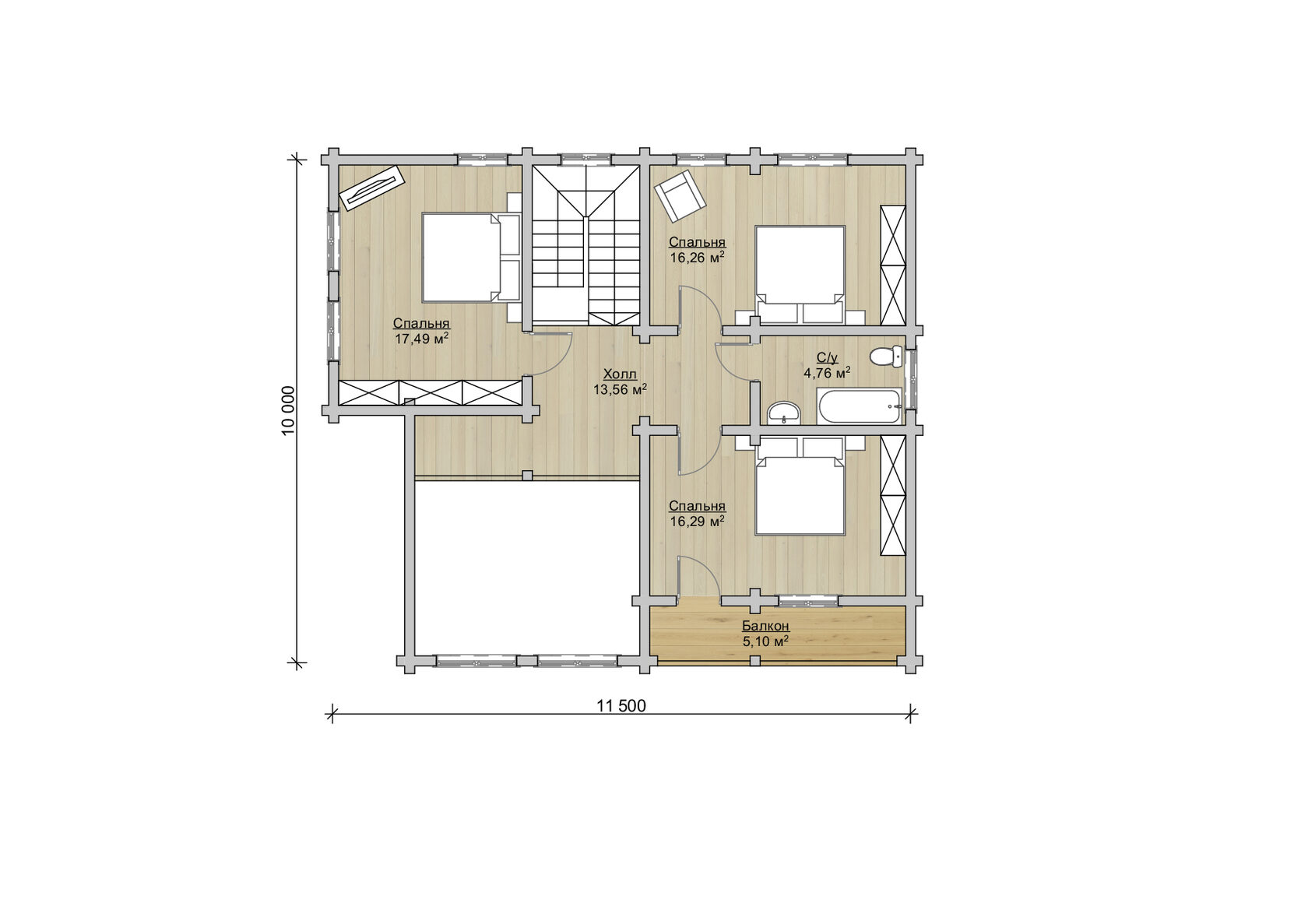
На втором этаже — три тихие спальни, семейный санузел и уютный балкон.
Планировка гибкая: кабинет легко превращается в гостевую, а гардеробные решают вопрос хранения.
Дом выглядит современно: широкие свесы кровли, много света, глубокая терраса — эстетика сканди-резорта, которая не выйдет из моды.
Общая площадь:: ~242 м² (по планам; без учёта террас и балкона)
Кол-во комнат: 3 (кабинет на 1 этаже трансформируется в 4-ю)
Санузлы метраж: 3 (3,74 м² / 5,18 м² на 1 этаже; 4,76 м² на 2 этаже)
Бассейн: крытый, зеркало воды ~67,7 м²
Парная/сауна: Есть
Террасы/Балкон: терраса ~38 м² + терраса ~21 м², балкон ~5 м²
Гостиная: с вторым светом
Материал стен: Безусадочный клеёный брус
ПЛОЩАДЬ м²: 180 - 200
КОЛИЧЕСТВО ЭТАЖЕЙ: 2
НАЛИЧИЕ ТЕРРАСЫ: Да
СПАЛЬНИ: 4
САНУЗЛЫ: 3