+79999236067
clt.drev@yandex.com
КАТАЛОГ

СВАРОГЪ

ДРЕВЪ
  • Первый этаж: гостиная 29,28 м² с выходом на большую террасу 22,00 м², кухня-столовая 18,98 м², спальня для гостей, гардеробная 5,65 м², санузел 7,02 м², прихожая 6,30 м², холл 12,83 м², котельная 5,70 м², кладовая 3,70 м², крыльцо 9,60 м² и ещё терраса 9,60 м².
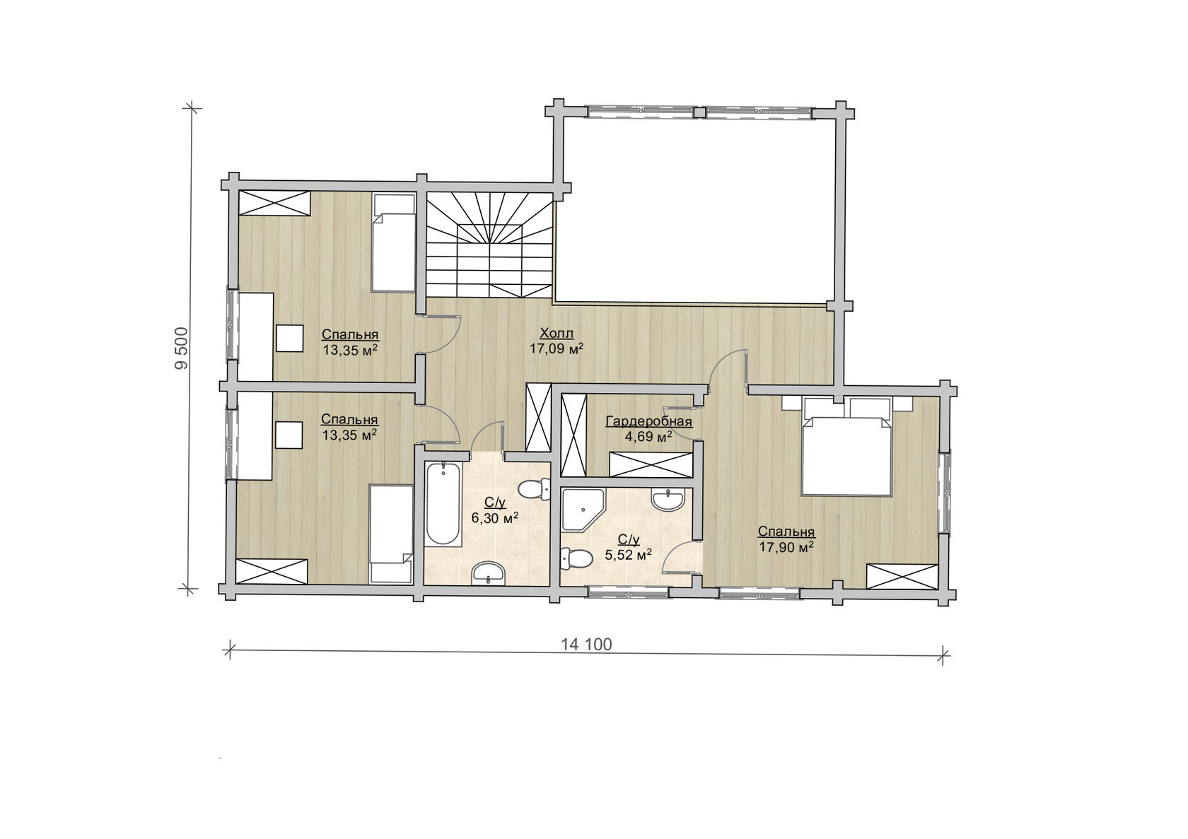
  • Второй этаж: три спальни (17,90 м² и две по 13,35 м²), две ванные (6,30 и 5,52 м²), гардеробная 4,69 м², холл 17,09 м². Над гостиной — второй свет.
  • Архитектура: сложная крыша, большие остекления в коньке фронтона, деревянные колонны на террасах.
  • Гибкость: легко добавить сауну/кабинет, объединить кухни и гостиную в единое пространство, расширить остекление террас.

Стоимость теплового контура с фундаментом, кровлей, монтажом, покраской и деревянными стеклопакетами — ПО ЗАПРОСУ.

Общая площадь с террасами: 220 м²

Кол-во комнат: 4 (1 на 1-м, 3 на 2-м)

Гостиная: 29,28 м², второй свет — да

Кухня-столовая: 18,98 м²

Гардероб: 5,65 м² (1-й), 4,69 м² (2-й)

Кладовые: 3,70 м²

Техпомещение (котельная): 5,70 м²

Террасы: 22,00 м² и 9,60 м²

Крыльцо: 9,60 м²

Материал стен: Безусадочный клеёный брус

ПЛОЩАДЬ м²: 180 - 200

КОЛИЧЕСТВО ЭТАЖЕЙ: 2

НАЛИЧИЕ ТЕРРАСЫ: Да

СПАЛЬНИ: 4

САНУЗЛЫ: 3

Описание
Планировки
Характеристики

Описание

Изысканный и гармоничный СВАРОГЪбольшой семейный дом в классике северного стиля. Панорамные окна с «вторым светом», две террасы и продуманная планировка дарят много воздуха и света. На первом этаже — общий простор для встреч, на втором — приватные спальни и две ванные. Дом, который одинаково хорош и для тёплого лета, и для снежной зимы.

  • Первый этаж: гостиная 29,28 м² с выходом на большую террасу 22,00 м², кухня-столовая 18,98 м², спальня для гостей, гардеробная 5,65 м², санузел 7,02 м², прихожая 6,30 м², холл 12,83 м², котельная 5,70 м², кладовая 3,70 м², крыльцо 9,60 м² и ещё терраса 9,60 м².
  • Второй этаж: три спальни (17,90 м² и две по 13,35 м²), две ванные (6,30 и 5,52 м²), гардеробная 4,69 м², холл 17,09 м². Над гостиной — второй свет.
  • Архитектура: сложная крыша, большие остекления в коньке фронтона, деревянные колонны на террасах.
  • Гибкость: легко добавить сауну/кабинет, объединить кухни и гостиную в единое пространство, расширить остекление террас.
Стоимость теплового контура с фундаментом, кровлей, монтажом, покраской и деревянными стеклопакетами — ПО ЗАПРОСУ.

Планировки

Характеристики

Площадь общая: 220 м²
Этажность: 2
Спальни: 4 (1 на 1-м, 3 на 2-м)
Санузлы: 3 (1 на 1-м, 2 на 2-м)
Гостиная: 29,28 м², второй свет — да
Кухня-столовая: 18,98 м²
Гардеробные: 5,65 м² (1-й), 4,69 м² (2-й)
Кладовая: 3,70 м²
Котельная: 5,70 м²
Террасы: 22,00 м² и 9,60 м²
Крыльцо: 9,60 м²
Габариты застройки (по плану 1 этажа): 16,0 × 11,0 м
Материал стен: клеёный брус (порода/сечение — по ТЗ)
Кровля: черепица (варианты)
Остекление: деревянные стеклопакеты
Фундамент: под геологию участка (свайно-ростверковый/лента — по проекту)
Индивидуальная планировка: возможно
Made on
Tilda